Piso en venta en calle de Santa Cruz de Mudela
- 170.000€
Piso en venta en calle de Santa Cruz de Mudela
- 170.000€
Visión general
- Piso
- 3
- 1
- 75 M2
- 1959
Descripción
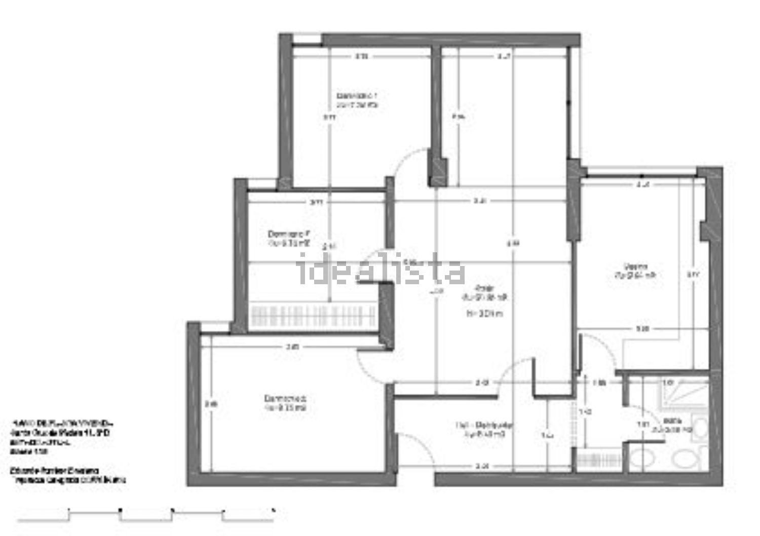
Se vende piso exterior, muy luminoso. Es una 3ª planta y tiene 75 m2 construidos. Se distribuye de la siguiente manera:
– Hall de entrada.
– Amplio salón en 2 ambientes.
– 3 dormitorios.
– Cuarto de baño.
– Cocina independiente.
Calefacción y agua caliente por gas natural individual, Aire acondicionado en el salón: Edificio con ascensor, muy tranquilo. 4 vecinos por planta. La vivienda necesita actualización de calidades, se adjuntan planos tanto de distribución actual (Primer plano) como de posibles reformas (dos últimos planos). Comunidad 42 € / mes. ITE favorable hasta el 2025.
En el entorno tenemos el metro de Almendrales (Linea 3) a escaso 300 metros de la vivienda, asi como 11 lineas de autobuses de la EMT, por lo que tenemos una muy buena comunicacion con distintos puntos de Madrid. Tambien tenemos en el entorno todo aquello necesario para nuestra vida cotidiana (Supermercados, Comercios, Bares, Colegios, Centro de Salud y hospital 12 de octubre, etc.. . ).
Si deseas ampliar información y visitarlo, no dudes en contactar con nosotros.
Dirección
Abrir en Google Maps-
Dirección: Almendrales, Madrid
-
Ciudad: Madrid Venta Alquiler
Detalles
Updated on septiembre 29, 2025 at 10:14 am-
Precio 170.000€
-
Tamaño de la propiedad 75 M2
-
Dormitorios 3
-
Baño 1
-
Año de construcción 1959
-
Tipo de propiedad Piso
-
Estado de la propiedad Vendidas
Calculadora de hipotecas
-
Pago inicial
-
Loan Amount
-
Monthly Mortgage Payment
-
Impuesto sobre bienes inmuebles
-
Seguro de hogar
-
PMI
-
Monthly HOA Fees






































